
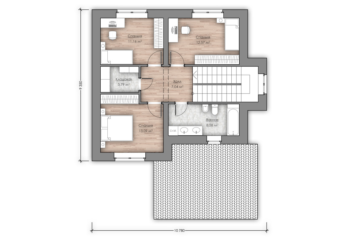
Этот дом построен по проекту "Лепс 2"
площадь
140 м2
этажей
2
габариты
12 х 11 м
потолок
3.1 м
спален
4
санузлов
2
Фундамент:
Ленточный или свайно-ростверковый, определяет проектировщик по результатам геологии, перекрытие-монолитная плита.
Стены:
газобетонный блок D500 шириной 375мм
Кровля
Металлочерепица GRAND LINE
Цена дома по этому проекту
7.7 млн руб.
Актуальная цена на 26.04.2026 г.

Ответьте на несколько вопросов за 1 минуту
и получите расчёт стоимости дома по вашим параметрам
При заключении договора эскизный проект вашего дома в подарок.
Вопрос 1 из 8
Тип дома
Площадь дома
Участок
Оплата
Начало стройки
Расчёт не готов

Посетите наш
офис в Калуге
Запишитесь на встречу
в нашем офисе в Калуге

Строительство тёплых домов
в Калуге и области
ИП Кириленко А.В.
ИНН 402709940136
ОГРНИП 309402727800010
Калуга, ул. Гагарина
4 офис 305
Ипотечный кредит предоставляется ПАО Сбербанк РФ. Банк вправе отказать в предоставлении ипотечного кредита без объяснения причин. Подробнее об условиях кредитования, необходимых документах, ограничениях на сайте sberbank.ru. ПАО Сбербанк. Генеральная лицензия Банка России на осуществление банковских операций. Генеральная лицензия банка России на осуществление банковских операций №1481 от 11.08.2015.
Ипотечный кредит также предоставляется Банк ВТБ, АО Газпромбанк, АО Россельхозбанка, АО Дом, Подробнее об условиях кредитования, необходимых документах, ограничениях на сайте банка. https://дом.рф/ (АО «Банк ДОМ.РФ». Универсальная лицензия ЦБ РФ № 2312 от 19 декабря 2018 года.), https://www.gazprombank.ru/ (© 1990-2024, Банк ГПБ (АО) Генеральная лицензия Банка России № 354_, https://www.rshb.ru/ (© 2000-2024 АО Россельхозбанк Генеральная лицензия Банка России № 3349 от 12.08.2015 г.), ВТБ 2024 Генеральная лицензия Банка России №1000 от 14 августа 2024 года (https://www.vtb.ru/personal/ipoteka/)
Сайт носит исключительно информационный характер и не является публичной офертой, определяемой положениями ГК РФ. Для получения подробной информации о наличии, видах, характеристиках и стоимости домов обращайтесь в офис продаж.
Сайт сделан в Intent